16035 Pirates Cove LaneLathrop, CA 95330

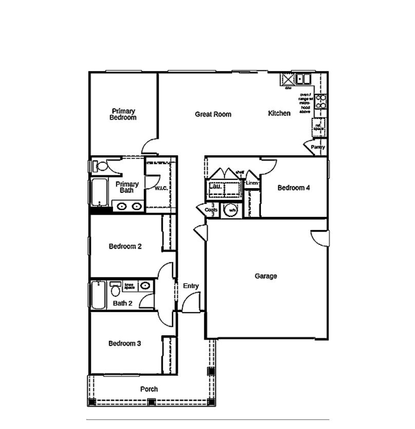
Under Construction - This charming Craftsman-style single-story home is coming to life with a thoughtfully designed open layout. Inside, 9-ft. ceilings and a spacious great room create a bright, welcoming atmosphere. The modern kitchen flows seamlessly into the great room and offers the option to add a central island for additional counter space and casual dining. A dedicated laundry room adds everyday convenience, while the spacious primary suite provides a relaxing retreat. Some energy-efficient features include low-E windows, WaterSense® fixtures, a smart thermostat, an electric water heater, and Whirlpool® appliances. With construction still underway, there is a limited-time opportunity to personalize select design features such as cabinetry, countertops, flooring, bath options, and more, allowing you to reflect your personal style. Located in Arcadia at Stanford Crossing, this vibrant new-home community is ideally situated near the Lathrop Generations Center and Lathrop High School. Enjoy nearby community parks, scenic river trails, and access to the San Joaquin River. Commuters will appreciate convenient access to I-5, I-205, and I-580, providing easy connections to Dublin, the Central Valley, and the Bay Area.
| 3 weeks ago | Listing updated with changes from the MLS® | |
| 3 weeks ago | Status changed to Pending | |
| 2 months ago | Listing first seen on site |
All measurements and all calculations of the area are approximate. Information provided by Seller/Other sources, not verified by Broker. All interested persons should independently verify the accuracy of information. Provided properties may or may not be listed by the office/agent presenting the information. Data maintained by MetroList® may not reflect all real estate activity in the market. All real estate content on this site is subject to the Federal Fair Housing Act of 1968, as amended, which makes it illegal to advertise any preference, limitation or discrimination because of race, color, religion, sex, handicap, family status or national origin or an intention to make any such preference, limitation or discrimination. Terms of Use
Last checked 2026-01-27 08:25 AM PST




Did you know? You can invite friends and family to your search. They can join your search, rate and discuss listings with you.