333 Pismo DriveLathrop, CA 95330

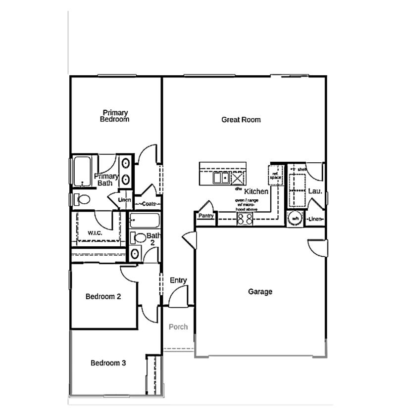
Under Construction, this Tuscan-style single-story home offers 9-ft. ceilings and a spacious great room that creates a warm, welcoming setting for everyday living and entertaining. The well-designed kitchen features a central island overlooking the living area, ideal for gatherings, along with a convenient pantry closet. A dedicated laundry room and built-in linen storage add everyday functionality. Energy-efficient features include Low-E windows, WaterSense® fixtures, and Whirlpool® appliances. While construction is underway, you'll have the opportunity to personalize select cabinetry, countertops, flooring, and bath options with guidance from our professional design team. Located in the new Arcadia at Stanford Crossing community, residents enjoy close proximity to the Lathrop Generations Center, Lathrop High School, nearby parks, scenic river trails, and the San Joaquin River. Commuters will appreciate easy access to I-5, I-205, and I-580, connecting to Dublin, the Central Valley, and the Bay Area.
| 2 weeks ago | Listing updated with changes from the MLS® | |
| 2 weeks ago | Status changed to Pending | |
| 3 weeks ago | Price changed to $559,990 | |
| a month ago | Listing first seen on site |
All measurements and all calculations of the area are approximate. Information provided by Seller/Other sources, not verified by Broker. All interested persons should independently verify the accuracy of information. Provided properties may or may not be listed by the office/agent presenting the information. Data maintained by MetroList® may not reflect all real estate activity in the market. All real estate content on this site is subject to the Federal Fair Housing Act of 1968, as amended, which makes it illegal to advertise any preference, limitation or discrimination because of race, color, religion, sex, handicap, family status or national origin or an intention to make any such preference, limitation or discrimination. Terms of Use
Last checked 2026-01-27 08:25 AM PST




Did you know? You can invite friends and family to your search. They can join your search, rate and discuss listings with you.