15985 Pirates Cove LaneLathrop, CA 95330


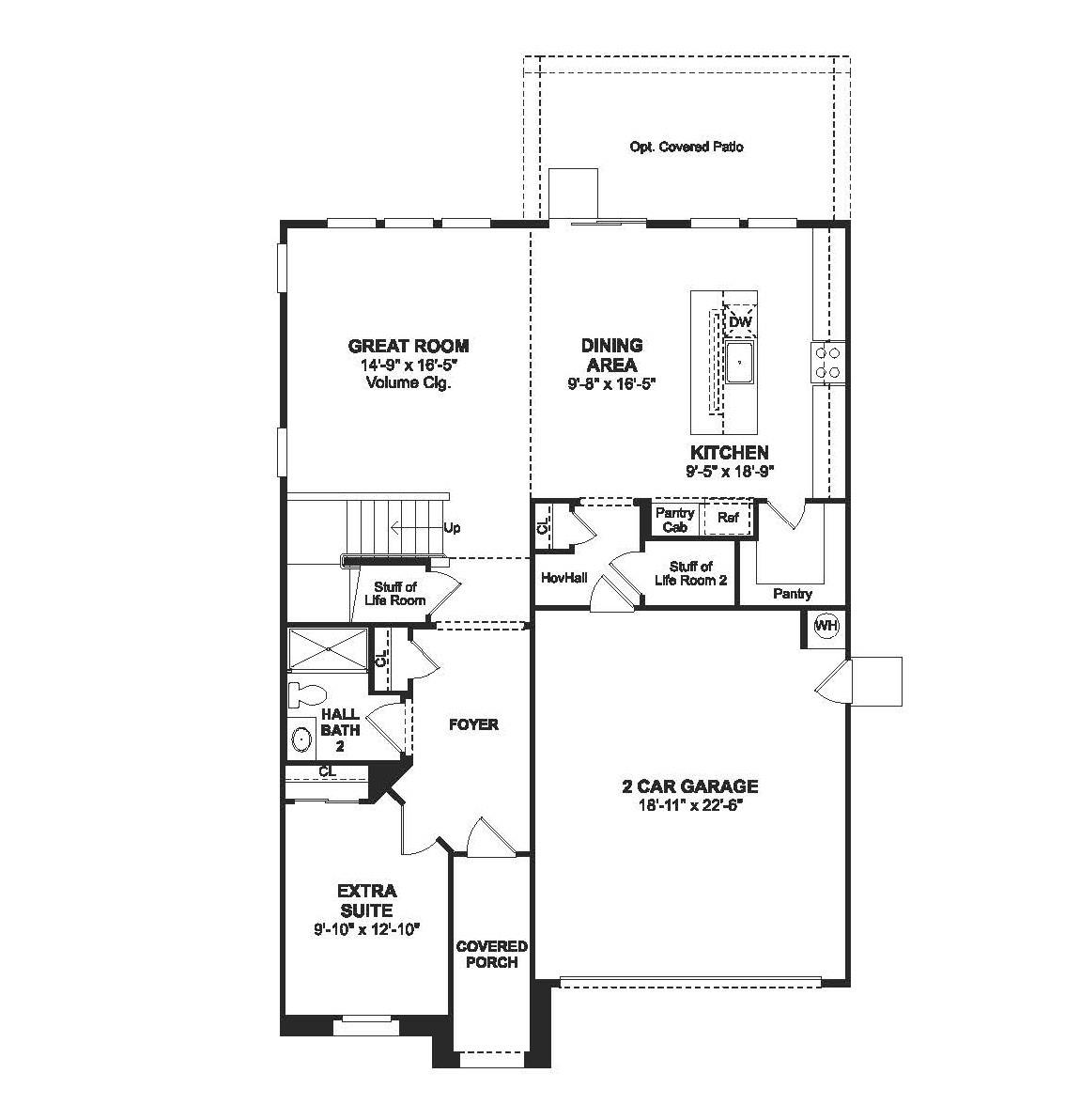
Welcome to the Oban plan at Pacifica by K. Hovnanian Homes, a thoughtfully designed two-story residence that pairs modern sophistication with everyday livability. Offering 4 bedrooms and 3 baths, this home is enhanced with Loft-inspired finishes that add warmth, depth, and character throughout. The chef-inspired kitchen is both striking and functional, featuring rich blue cabinetry complemented by Arctic White quartz countertops, a spacious island with pendant lighting, and stainless-steel appliances including a gas range and double oven. Thoughtful upgrades such as soft-close drawers, roll-out shelves, and a custom vent hood elevate both style and convenience. The kitchen opens seamlessly to the great room, creating a bright, welcoming space ideal for entertaining or relaxing. A first-floor bedroom with a nearby full bath provides excellent flexibility for guests or multigenerational living. Upstairs, a generous loft adapts easily to your needs, whether as a home office, media room, or recreation space. The primary suite is a true retreat, boasting two walk-in closets and a spa-inspired bath with dual vanities, a freestanding soaking tub, and a separate shower. Two additional bedrooms and a full bath complete the second level. Beautifully appointed and designed for versatility, the Oban plan offers timeless style, smart functionality, and a place you'll be proud to call home. *Prices subject to change.
| 2 weeks ago | Listing updated with changes from the MLS® | |
| 2 weeks ago | Listing first seen on site |
All measurements and all calculations of the area are approximate. Information provided by Seller/Other sources, not verified by Broker. All interested persons should independently verify the accuracy of information. Provided properties may or may not be listed by the office/agent presenting the information. Data maintained by MetroList® may not reflect all real estate activity in the market. All real estate content on this site is subject to the Federal Fair Housing Act of 1968, as amended, which makes it illegal to advertise any preference, limitation or discrimination because of race, color, religion, sex, handicap, family status or national origin or an intention to make any such preference, limitation or discrimination. Terms of Use
Last checked 2026-01-27 08:25 AM PST




Did you know? You can invite friends and family to your search. They can join your search, rate and discuss listings with you.